Einfamilienhaus mit Satteldach
generation5.5 Haus 300, 2-geschossig
Alles auf einen Blick
Außenmaße
9,85 x 12,35 m
Wohnfläche
200,33 m2
Architektur
2-geschossige Häuser
Baureihe
generation5.5 — Haus 300, 2-geschossig
Dachform
Satteldach
Merkliste
Mehr Informationen?

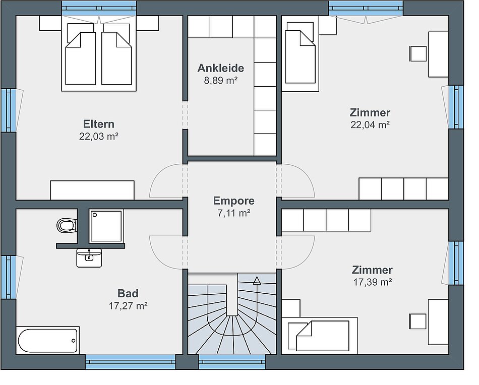
Fast 200 Quadratmeter Wohlfühlfläche

Ob mit Sattel-, Walm- oder Flachdach: Die extragroße Variante von generation5.5 sieht mit jeder Dachform schick aus. Wählen Sie nach Ihren Vorlieben und eventuellen Bauvorschriften. Über die optischen Vorzüge hinaus ist dieser Entwurf mit zwei vollwertigen Wohnebenen ideal für alle, die es schön großzügig mögen. Sage und schreibe 200 Quadratmeter warten darauf, von Ihnen gestaltet zu werden. Absolutes Highlight ist zweifellos der geräumige Wohn-Essbereich im Erdgeschoss, auf Wunsch mit offener oder geschlossener Küche.

Moments 2026 - Unsere Aktionspakete

Manchmal spürt man, dass ein neuer Lebensabschnitt beginnt.

Damit genau dieser Schritt leichter wird, gibt es WeberHaus Moments. 
Für alle, die nicht warten wollen, bis sich das Leben verändert - sondern den Moment jetzt selbst gestalten.

Manche Entscheidungen geben Sicherheit. Andere schenken Freiheit. Und manche verbinden beides.
Unsere drei Aktionspakete zu einem besonderen Preis verbinden beides. Mit Technik, die entlastet, und Lösungen, die heute schon an morgen denken. 
Sie haben die Wahl: Zu einem Aktionshaus wählen Sie ein Aktionspaket. Bei einem Haus aus unseren Baureihen oder einer individuellen Planung können es zwei sein. 
Das Hauskonzept OPTION ist von den Aktionspaketen ausgenommen.

Mehr zur Aktion erfahren

Photovoltaikanlage mit Batteriespeicher

  • 16 Doppelglas-Solarmodule (je 470 Wp), Gesamtleistung: 7,52 kWp
  • SENEC-Home P4 Batteriespeicher mit 7,1 kWh
  • Lithium-Eisenphosphat-Technologie
  • Flexibel erweiterbar (bis max. 17,75 kWh)
  • Steuerung per App

Jetzt nur 15.500,00 €

THZ Luft-Wasser-Wärmepumpe inkl. Fußbodenheizung

  • Multifunktional: Heizen, Kühlen (optional), Lüften, Warmwasser
  • Klimafreundliches Kältemittel R290 (Propan)
  • Steuerung via App
  • Inklusive Gutschein für 2 Wartungen

Jetzt nur 12.500,00 €

Smart Home Haussteuerung Symbox

  • Zentrale Smart‑Home‑Steuerung mit WeberLogic 2.0 – SymBox als Herzstück
  • Intuitive Kacheloberfläche – pro Raum individuell anpassbar
  • Szenen & Zentralfunktionen inkl. Zeitplänen
  • Optionale Erweiterungen: Wetterstation, Sprachassistenten, uvm.

Jetzt nur 5.500,00 €*

* = Preisbeispiel für CityLife 205.

Grundrisse

WeberHaus Logo Lade-Animation