
OPTION Bungalow mit Flachdach
Alles auf einen Blick
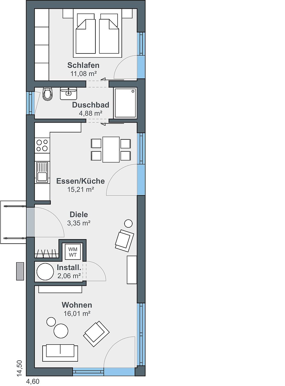
Außenmaße
4,60 x 14,50 m
Wohnfläche
52,74 m2
Architektur
1-geschossige Häuser (Bungalow)
Bauhaus-Stil
Baureihe
OPTION — Bungalow mit Flachdach
Dachform
Flachdach
Mehr Informationen?
Kompakter Bungalow mit Flachdach
Der Bungalow aus der Baureihe OPTION besticht mit einer imposanten Länge von 14,50 Metern und einer Wohnfläche von rund 55 m2 – perfekt für Menschen, die sich aufs Wesentliche konzentrieren möchten. Mit Flachdach und weißer Putzfassade erinnert er an den Bauhaus-Stil: schlicht, funktional und modern. Die Vorderseite präsentiert sich bewusst zurückhaltend, während auf der Rückseite großzügige Fensterelemente viel natürliches Licht ins Innere des Hauses lassen. Für eine wärmere Ausstrahlung besteht die Möglichkeit, den Bungalow mit Holzschalung zu wählen.
Preis-Beispiel
Preis-Basis ist die Ausbaustufe "Bad komplett" inklusive top Ausstattungs-Highlights
Erdgeschoss ausgebaut (Bungalow) inkl. Bodenplatte
WeberHaus Option, Bungalow mit Flachdach, inkl. Bodenplatte und Putzfassade. Basis der genannten Preise ist die derzeit gültige Bau- und Ausstattungsbeschreibung.
Preise gültig bis 01.02.2026
Preise gültig bis 01.02.2026
189.000,- €
