
OPTION Bungalow mit Satteldach offen bis First
Alles auf einen Blick
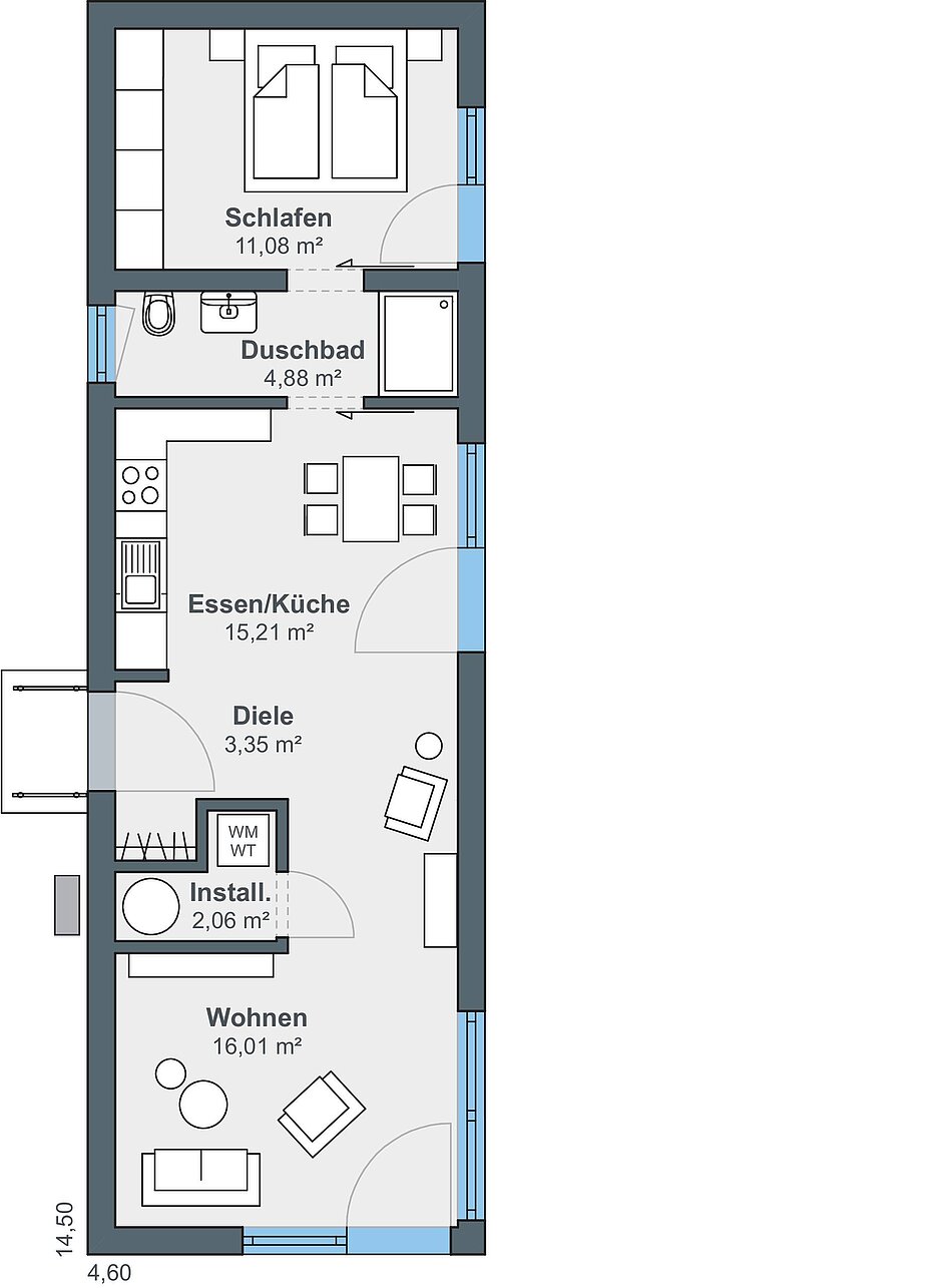
Außenmaße
4,60 x 14,50 m
Wohnfläche
52,74 m2
Architektur
1-geschossige Häuser (Bungalow)
Baureihe
OPTION — Bungalow mit Satteldach offen bis First
Dachform
Flachdach
Ausstellungshaus
Am Erlenpark 1 in 77866 Rheinau-Linx, Deutschland
Mehr Informationen?
Bungalow mit partiellem Satteldach
Für diejenigen, die sich dem Motto "Weniger ist mehr" verschrieben haben und kompaktes Wohnen mit individueller Freiheit bevorzugen, ist der Bungalow OPTION die ideale Wahl. Mit einer Wohnfläche von rund 55 m2 und einer intelligenten Raumgestaltung bietet er ausreichend Platz für ein bis zwei Personen. Der 14 Meter lange Bungalow kann mit partiellem Satteldach oder mit Flachdach gewählt werden. Bei beiden Entwürfen öffnen sich die Räume durch großzügige Fensterelemente zur Gartenseite und schaffen so eine harmonische Verbindung zur Natur.
Einfach, komfortabel und inspirierend:
Die virtuelle Hausbesichtigung per 360 Grad-Rundgang. Klicken Sie sich ins Haus.
Preis-Beispiel
Preis-Basis ist die Ausbaustufe "Bad komplett" inklusive top Ausstattungs-Highlights
Erdgeschoss ausgebaut (Bungalow) inkl. Bodenplatte
WeberHaus Option, mit partiellem Satteldach, inkl. Bodenplatte und Putzfassade. Basis der genannten Preise ist die derzeit gültige Bau- und Ausstattungsbeschreibung.
Preisstand: 01.02.2026
Preisstand: 01.02.2026
199.000,- €

