
"Wohnen mit genug Platz für die ganze Familie"
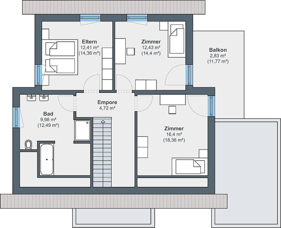
"Ein originelles Spiel mit der klassischen Hausform: Es sieht aus, als sei eine Hälfte verkleinert an die andere Hälfte gesetzt. So entsteht ein versetztes Pultdach. Die Farbgebung im vorliegenden Entwurf unterstreicht die spannende Form. Im Innern ergibt sich durch die versetzte Anordnung eine klare Trennung von Wohn-Essbereich und den anderen Räumen. Die repräsentative Eingangssituation und die Öffnung des Wohnraumes hin zu Garten und Terrasse verlangen nach Leben, Kommunikation und Geselligkeit. Eine weitere, überdachte Terrasse liegt neben dem Essbereich unter dem Balkon. Das Haus ist mehr als ausreichend für eine Familie mit drei Kindern."
Einfach, komfortabel und inspirierend:
Die virtuelle Hausbesichtigung per 360 Grad-Rundgang. Klicken Sie sich ins Haus.

