09. Juli 2025

Eigenheim im Komplettpaket

Schlichtes Satteldachhaus mit Wow-Effekt im Innern

Als Isabel Ramtohul zusammen mit ihrem Ehemann Tikesh und Töchterchen Audrey 2020 in ihren Heimatort zurückkehrte, hatte sie einen festen Plan: Sie wollte das Haus ihres Vaters zu einem gemütlichen Familienhaus umbauen, in dem alle drei Generationen Platz finden. Doch leider ging es nicht in dem Tempo voran, wie die Familie erhofft hatte. Isabel Ramtohul erinnert sich: „Im Sommer 2021 war ein Architekt vor Ort und hat sich mein Elternhaus angeschaut. Er meinte, bei der Summe, die auf uns zukäme, könne man auch gleich ein neues Haus bauen.“ Diese Idee ließ Isabel und Tikesh Ramtohul aufhorchen: „Das Nachbargrundstück war im Besitz meines Vaters, wir hatten also bereits den perfekten Bauplatz. Noch am selben Tag haben wir uns Häuser im Internet angesehen und Kataloge gewälzt. Wir wollten jetzt Nägel mit Köpfen machen.“ 

Alles aus einer Hand
Über die Bauweise waren sich die Eheleute schnell einig: Ein schlüsselfertiges Eigenheim in moderner Holzfertigbauweise sollte es werden, bei dem sie sich um möglichst wenig kümmern müssen. „Wir sind beide beruflich stark eingebunden und besitzen nur wenig handwerkliches Know-how. Zudem war ich zu diesem Zeitpunkt mit unserer zweiten Tochter schwanger. Kurzum: Wir hatten weder die Zeit noch den Nerv für Eigenleistungen oder die Organisation verschiedener Gewerke“, gesteht Isabel Ramtohul. Bei der Auswahl des passenden Baupartners legte die wachsende Familie besonderes Augenmerkt auf den Wandaufbau. „Wichtig war nicht nur die Energieeffizienz, sondern auch das Thema ‚Wohngesundheit‘. Wir wollten uns über die eingesetzten Materialien und Baustoffe keine Sorgen machen müssen. WeberHaus lieferte das für uns stimmigste Hauskonzept.“
Standard in jedem WeberHaus ist die Gebäudehülle ÖvoNatur Therm, die hauptsächlich aus natürlichen Materialien besteht. Allen voran der nachwachsende und ökologische Baustoff Holz, der nicht nur in Form von Balken und Sparren verbaut wird, sondern auch als Holzfaserdämmung. Letztere sorgt dank ihrer hohen Wärmespeicherfähigkeit und geringen Wärmeleitfähigkeit das ganze Jahr über für angenehme Temperaturen im Haus. Alle eingesetzten Materialien werden auf ihre Umwelt- und Gesundheitsverträglichkeit geprüft. Das gesündere Raumklima, das in einem WeberHaus herrscht, wird durch die Zertifizierungen von drei unterschiedlichen Instituten belegt. 

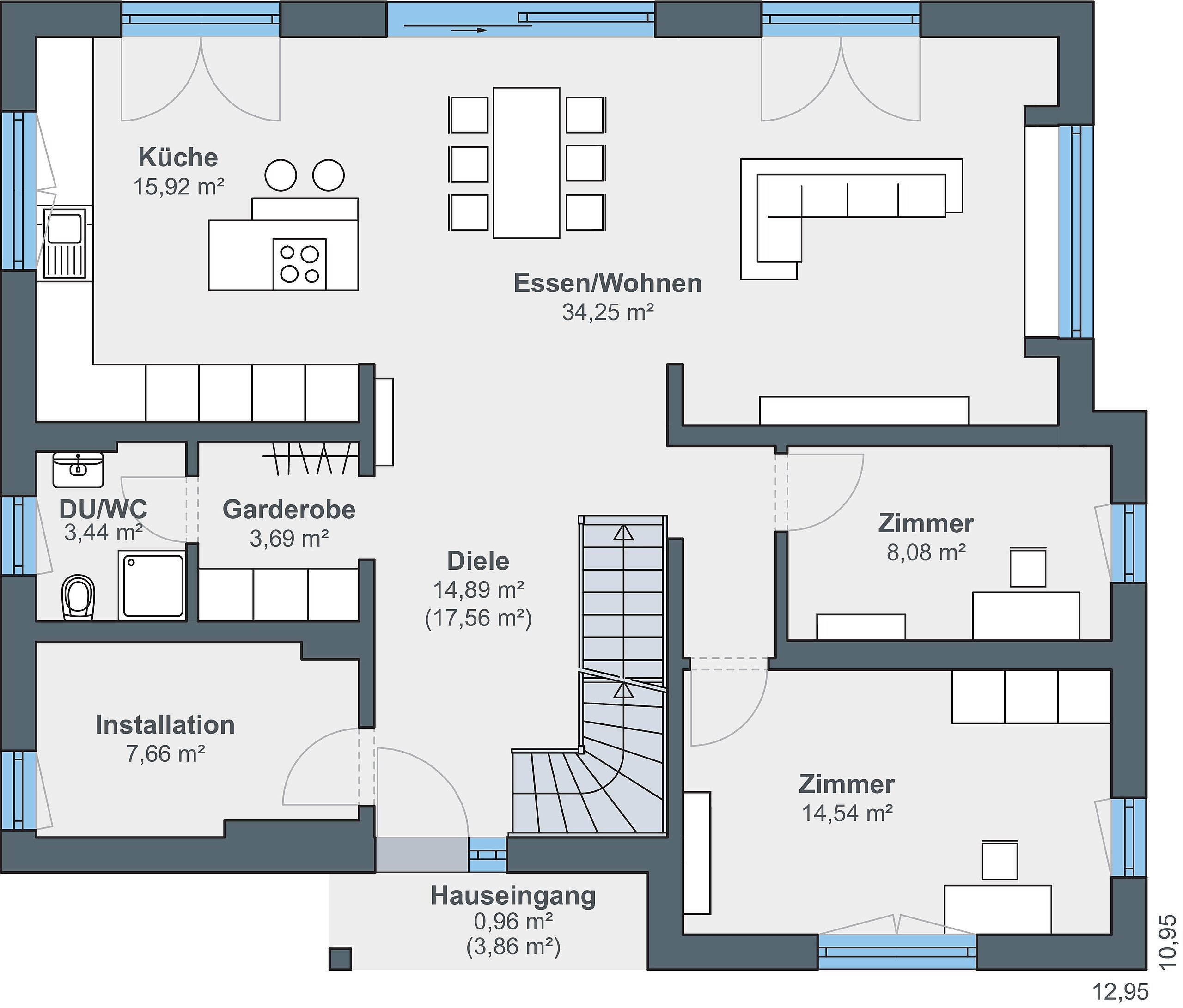
Großzügig dimensioniert
Die Basis für das neue Familiendomizil bildet ein Haus aus der Baureihe generation5.5, das perfekt auf die Bedürfnisse seiner zukünftigen Bewohner abgestimmt wurde. „Entscheidend war dabei die Hausgröße. Wir brauchten zwei Kinderzimmer und zwei Arbeitszimmer“, berichtet Isabel Ramtohul. „Besonders gefallen hat uns die Kostentransparenz: Bei Änderungen, beispielsweise dem Neigungsgrad des Satteldachs, haben wir immer direkt die Preise genannt bekommen. So konnten wir schnell entscheiden, ob die Variante in unseren Budgetrahmen passt.“
Von außen präsentiert sich der Neubau sehr schlicht und unaufgeregt: Mit der weißen Putzfassade und dem flach geneigten Satteldach fügt sich das Gebäude harmonisch in das ländliche Ortsbild ein. Blickfang ist der grau abgesetzte Übereck-Erker, der sich in eine praktische Eingangsüberdachung verlängert. Hinter dem Haus erstreckt sich eine große Holzterrasse, auf der die Familie einen langen Esstisch und eine gemütliche Loungeecke mit Terrassenkamin platziert hat.

Lichtdurchflutet und gemütlich
Das Innere des Hauses überrascht mit seiner Offenheit und Weite: Betritt man das Gebäude, steht man direkt im Essbereich, der bis zum Dachboden offen ist. Auf der rechten Seite schließt sich nahtlos die Küche an, links liegt der Wohnbereich. Dank großzügiger Verglasungen auf beiden Ebenen wird das gesamte Raumensemble in eine sonnige Atmosphäre getaucht. Ein echtes Highlight ist das gemütliche Sitzfenster im Wohnbereich, von dem aus man nicht nur den Garten, sondern auch den Fernseher im Blick hat. An kühlen Winterabenden zündet die Familie gern den Kaminofen an, der für Lagerfeuerromantik sorgt. „Das Holz holen wir aus unserem Waldgrundstück“, freut sich Isabel Ramtohul. Ergänzt wird das Raumangebot im Erdgeschoss von zwei flexibel nutzbaren Zimmern, einem Gästebad mit Dusche sowie dem Technikraum.
Über die stylische Massivholztreppe mit Glasgeländer gelangt man auf die Empore, die sich wie eine Brücke über die Gemeinschaftsräume spannt. „Ursprünglich war die Empore als Leseecke gedacht, jetzt wird sie von den Kindern zum Spielen genutzt“, schmunzelt die zweifache Mutter. Das Obergeschoss teilt sich in zwei Trakte, die Eltern und Nachwuchs größtmögliche Privatsphäre bieten. Isabel und Tikesh Ramtohul können sich über ein luftiges Schlafzimmer mit angeschlossener Ankleide und ein luxuriös ausgestattetes Bad freuen. Den beiden Töchtern stehen zwei gleich große Zimmer und ein separates Kinderbad zur Verfügung.

Auf ganzer Linie effizient
Für Wohlfühltemperaturen im Haus sorgt die Frischluft-Wärmetechnik – eine Kombination aus Luftwärmepumpe und Lüftungsanlage mit Wärmerückgewinnung, die in den Sommermonaten auch kühlen kann. Den nötigen Strom liefert die große Photovoltaik-Anlage auf dem Dach. Energie, die gerade nicht benötigt wird, fließt in den Stromspeicher, wo sie für einen späteren Zeitpunkt zwischengelagert wird. „Die PV-Anlage war anfangs gar nicht geplant, jetzt sind wir aber sehr froh drüber“, berichtet Isabel Ramtohul. Sämtliche Hausfunktionen – von der Heizung bis zur Beschattung – werden über das Smart-Home-System WeberLogic 2.0 gesteuert.

Wenn man Familie Ramtohul fragt, was denn das Besondere an ihrem neuen Haus ist, lässt die Antwort nicht lange auf sich warten: „Dass es unser Haus ist. Alles ist so, wie wir es uns vorgestellt haben.“
 

Unser Service
Bilder laden
WeberHaus Logo Lade-Animation