03. April 2025

Ein Leben ohne Hindernisse

Rollstuhlgerechter Bungalow für zwei

Es ist ein sonniger Sommertag: Lothar Krause hat es sich auf der überdachten Terrasse vor dem neuen Bungalow gemütlich gemacht und beobachtet lächelnd, wie seine Ehefrau Kornelia im Garten ein paar Blumen schneidet. Die vielen wilden Kräuter um sie herum verströmen einen angenehmen, mediterranen Duft, der Urlaubsfeeling aufkommen lässt. „Meine Frau ist sehr gerne im Garten aktiv und hat das ganze Umfeld geschaffen“, verrät Lothar Krause. „Mit den Steinen aus der Baugrube hat sie überall Mäuerchen und Wege gebaut. Das macht den Garten mit den vielen Wildkräutern so besonders.“
 
Das Haus als Hoffnungsanker
Bis vor wenigen Monaten lebten die Eheleute in ihrem alten zweistöckigen Haus mit vielen kleinen Räumen und engen Fluren, passend für eine große Familie, aber nicht für die neue Situation. Die Entscheidung, ein neues Haus zu bauen, trafen sie in einer schwierigen Lebensphase. „Mein Mann war lange sehr schwer krank. Es war nicht klar, ob er jemals wieder würde gehen können“, berichtet Kornelia Krause, während sie die eben gepflückten Blumen in einer kleinen Vase arrangiert. „Noch im Krankenhaus haben wir die ersten Hauskataloge gewälzt und damit die Hoffnung genährt, dass unser gemeinsames Leben noch nicht zu Ende ist. Wir waren damals kurz vor dem Rentenalter und suchten eine rollstuhlgerechte Wohnmöglichkeit, die zu unserem Leben mit Enkelkindern und viel Besuch, passte.“ Recht schnell kristallisierte sich WeberHaus als Baupartner heraus: „WeberHaus war das einzige Unternehmen, das uns völlige Barrierefreiheit – auch im Eingangsbereich – zusagen konnte. Alle anderen Mitbewerber boten uns eine Rampe vor den Eingangstüren an“, erklärt Lothar Krause. „Zudem handelt es sich bei WeberHaus um einen renommierten Haushersteller, bei dem wir davon ausgehen, dass wir auch in 20 Jahren noch Support erhalten.“

Hohe Ansprüche an das neue Zuhause
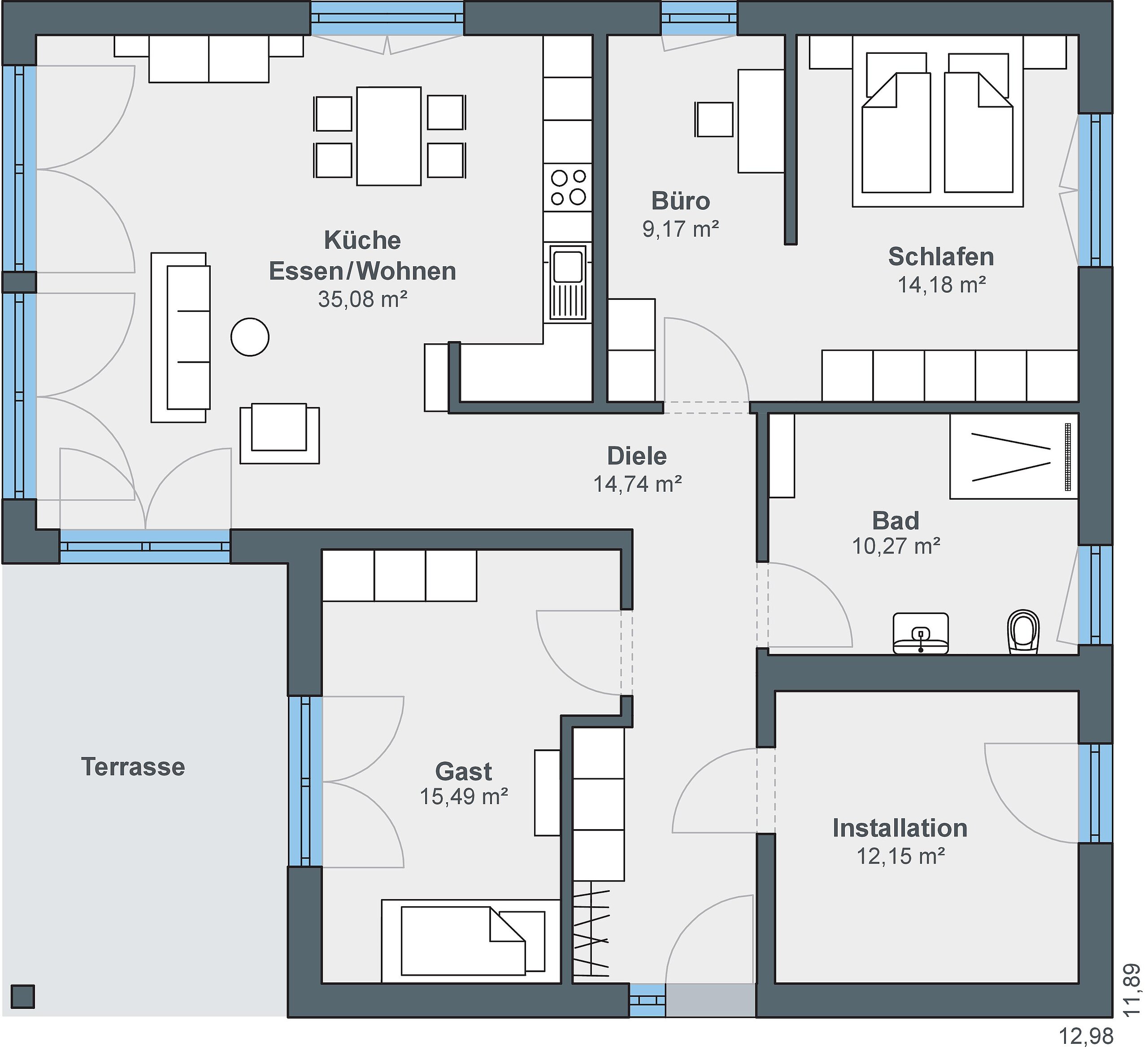
Die Vorgaben an den Baupartner waren klar definiert: „Wir wünschten uns einen angemessen dimensionierten Bungalow – absolut barrierefrei, energieeffizient, hell, offen und mit einem Raumklima zum Wohlfühlen“, so Lothar Krause. Die Basis dafür legt die Gebäudehülle ÖvoNatur Therm, die Standard in jedem WeberHaus ist. Sie besteht zu einem Großteil aus dem nachwachsenden Baustoff Holz, der von Natur aus sehr gute Wärmedämmeigenschaften besitzt. Der Wand- und Dachaufbau mit Holzfaserdämmung sorgt dafür, dass die Räume im Winter wohlig warm und im Sommer angenehm kühl bleiben. Alle eingesetzten Werkstoffe sind auf ihre Umwelt- und Gesundheitsverträglichkeit geprüft. Das gesündere Raumklima, das in einem WeberHaus herrscht, wird durch die Zertifizierungen von drei unterschiedlichen Instituten belegt.
 
Vom Energiesparer zum Energiegewinner
„Genial ist das Energiekonzept, das uns weitgehend unabhängig macht“, freut sich der Bauherr. Die Wärmeversorgung übernimmt eine energieeffiziente Luft-Wasser-Wärmepumpe, die von einem Kaminofen unterstützt wird. „Der Kaminofen erzeugt schnell Wärme und ist damit die ideale Ergänzung zur Fußbodenheizung. Frische Luft kommt über die Lüftungsanlage ins Haus – und das ganz ohne Wärmeverluste.“ Für satte Energiegewinne sorgt die leistungsstarke Photovoltaikanlage auf dem Dach des Bungalows mit insgesamt 20 Modulen. „Die Photovoltaikanlage stand von Anfang an fest. Wir haben sie sogar doppelt so groß auslegen lassen, als ursprünglich geplant. Das war auf jeden Fall die richtige Entscheidung“, zieht Lothar Krause Bilanz. „In Kombination mit dem Batteriespeicher sind wir ca. acht Monate im Jahr autonom und speisen fast dreimal so viel Überschussstrom in das öffentliche Netz ein, als wir selbst verbrauchen.“
 
Für den Alltag gerüstet
Damit sich Lothar Krause mit seinem Rollstuhl uneingeschränkt im und um das Haus bewegen kann, gibt es weder Stufen noch Engstellen. „Praktisch ist der gepflasterte Weg, der einmal um das Haus herumführt. Er ist nicht nur für mich gut befahrbar, sondern auch für die Enkelkinder mit ihren Kinderfahrzeugen“, lacht der Bauherr. „Der Eingang zum Haus wurde ebenerdig zur Pflasterung im Hof angelegt. Trotzdem sind die Wände im Sockelbereich vor Nässe geschützt.“ 
Das Innere des Bungalows präsentiert sich als große, weitgehend offen gestaltete Wohnzone. Dort, wo Türen notwendig sind, setzten die Eheleute auf breite Durchgänge von 95 cm. Bei der Gestaltung des Interieurs lag der Fokus auf funktionalen Lösungen und pflegeleichte Materialien. Ein Beispiel dafür sind die verputzten Wände: „Nach 30 Jahren Wohnerfahrung in unserem alten Haus wollten wir nie wieder tapezieren müssen. Daher haben wir uns für einen Innenputz entschieden, der sich einfach überstreichen lässt“, berichtet Kornelia Krause. Über den Boden zieht sich Laminat mit schöner Holzmaserung. Der durchgängige Belag schafft eine optische Verbindung zwischen den einzelnen Räumen und lässt Gemütlichkeit einziehen. Viele der Möbel stammen noch aus dem alten Zuhause, wie die Bauherrin verrät: „Wir haben uns bewusst mit alten und neuen Möbeln eingerichtet, um die Zusammengehörigkeit der beiden Lebensphasen zu unterstreichen.“
 
Lebensmittelpunkt des Hauses ist der Wohn-, Ess- und Kochbereich. „Die große Fensterfront erinnert an einen Wintergarten, den wir uns immer gewünscht haben“, so Kornelia Krause. „Wir genießen die tolle Aussicht und vor allem auch die allabendlichen Sonnenuntergänge. Es gibt nichts an unserem Bungalow, das wir wirklich bereut hätten und jetzt anders machen würden. Im Gegenteil: Es wird alles immer schöner!“

Unser Service
Bilder laden
WeberHaus Logo Lade-Animation