10. Juli 2025

WeberHaus erweitert Bungalow der Baureihe OPTION

Kompaktes Minihaus ergänzbar durch Anbaumodul

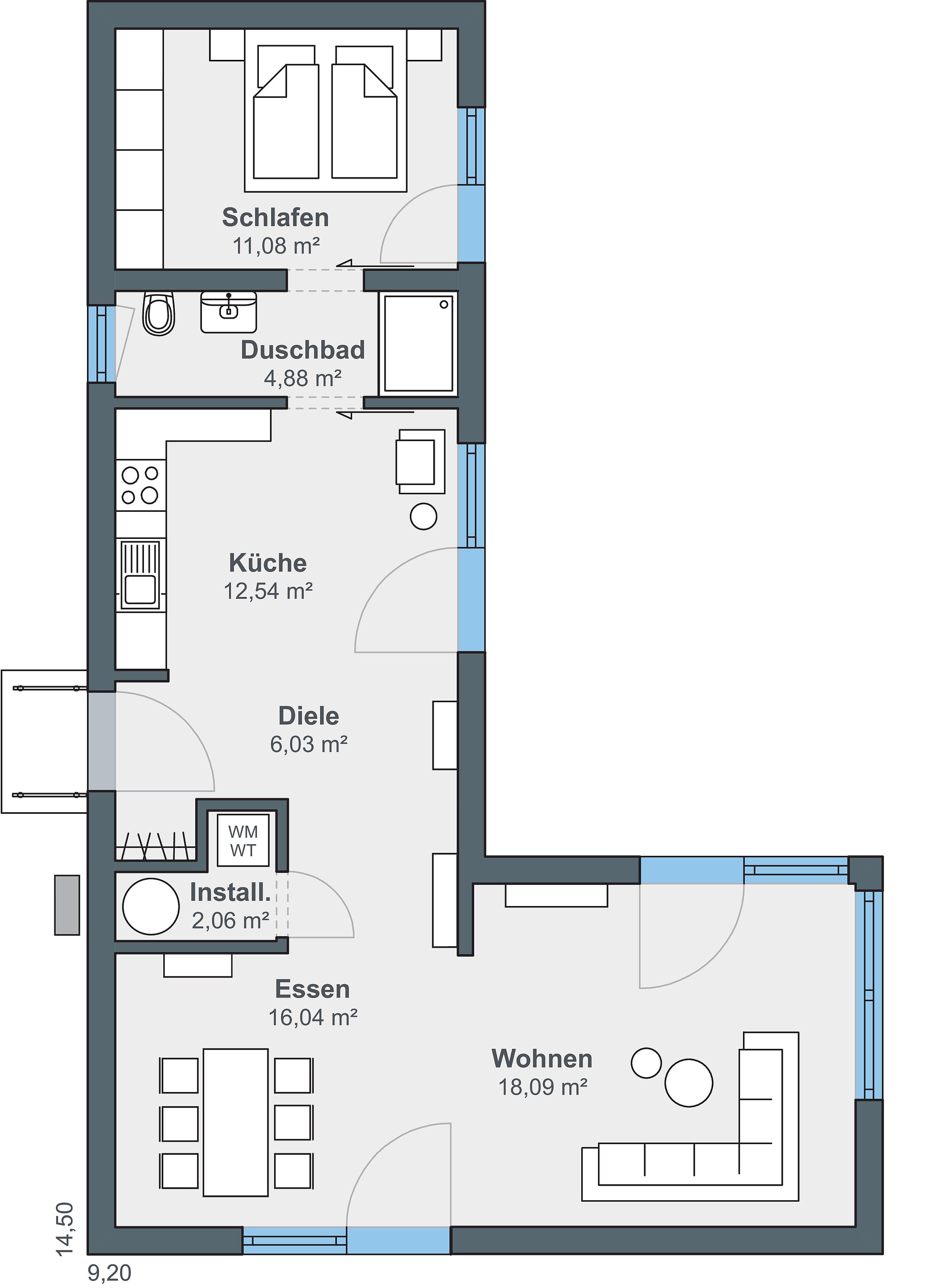
Rheinau-Linx, 10. Juli 2025. WeberHaus reagiert auf vielfache Anfragen von Interessenten, die sich beim kompakten Bungalow der Baureihe OPTION mit rund 50 m² Wohnfläche eine Erweiterungsmöglichkeit gewünscht haben. Ab sofort lässt sich das Minihaus mit einem optionalen Anbaumodul kombinieren. Das Modul mit Flachdach erweitert die Wohnfläche auf rund 70 m² und schafft zusätzlichen Raum, der vielfältig genutzt werden kann – beispielsweise als Wohn- oder Essbereich, Homeoffice oder kreativer Rückzugsort.

Der Bungalow ist mit modernem Flachdach oder mit einem partiellen Satteldach erhältlich. Unabhängig von der gewählten Dachform lässt sich jede Ausführung mit dem neuen Anbaumodul kombinieren. Die klare Architektur, kompakte Bauweise und durchdachte Raumaufteilung bleiben dabei erhalten und bieten eine intelligente Lösung für alle, die bewusst auf weniger Raum wohnen und dennoch Wert auf Komfort und Gestaltungsfreiheit legen. 
„Mit der Erweiterung des Bungalows um das Anbaumodul bieten wir unseren Kunden noch mehr Flexibilität und Möglichkeiten zur individuellen Gestaltung. So lässt sich der kompakte Wohnraum unkompliziert vergrößern und an unterschiedliche Lebenssituationen anpassen – ohne dabei den Anspruch an Architektur und Wohnqualität zu verlieren“, erklärt Wolfgang Weber, Geschäftsführer von WeberHaus.

Seit Anfang 2024 greift die Baureihe OPTION den Trend zu Minimalismus und Downsizing auf und setzt zugleich neue Maßstäbe im komfortablen Wohnen. Mit der Möglichkeit, den Bungalow um ein Anbaumodul zu ergänzen, unterstreicht WeberHaus das Bestreben, Wohnkonzepte flexibel an individuelle Lebensentwürfe anzupassen und die Vielfalt innerhalb der Baureihe OPTION weiter auszubauen. Ergänzend zum Bungalow gibt es die Baureihe auch als zweigeschossige Variante mit oder ohne Anbaumodul – wahlweise mit etwa 70 oder 90 m² Wohnfläche. Damit richtet sich OPTION an Singles, Paare ohne Kinder, Menschen in der zweiten Lebensphase oder alle, die kompakt und bewusst wohnen möchten. Die Minihäuser eignen sich je nach Ausführung nicht nur als dauerhaftes Wohnhaus, sondern auch als Atelier, Studio, Ferienhaus oder Büro.
 

Unser Service
Bilder laden
WeberHaus Logo Lade-Animation