
Adresse des Objekts
58256 Ennepetal
120 m²
Doppelhaushälfte
452.100 €
Doppelhaus KfW-40
Ein Zuhause mit Zukunft – nachhaltig, individuell, lebenswert!
Willkommen in Ihrem neuen Zuhause in Ennepetal – einem Ort,
an dem Design, Nachhaltigkeit und Wohnkomfort harmonisch
zusammenfinden.
Am Ebbinghauser Weg / Ecke Orchideenweg entsteht ein
modernes Neubauquartier mit 20 hochwertigen
Doppelhaushälften, das Ihnen mehr bietet als nur vier Wände –
hier gestalten Sie Ihr ganz persönliches Traumhaus.
Mit der innovativen Holzbauweise von WeberHaus entsteht ein
nachhaltiges KfW-40+ Haus inklusive Photovoltaikanlage und
Stromspeicher. So wohnen Sie energieeffizient, klimafreundlich
und zukunftssicher – und profitieren gleichzeitig von niedrigen
Energiekosten.
Das Besondere: Ihre Eigenleistung zahlt sich aus – Sie bringen
Ihre Ideen ein und senken dabei den Kaufpreis.
Objektdetails:
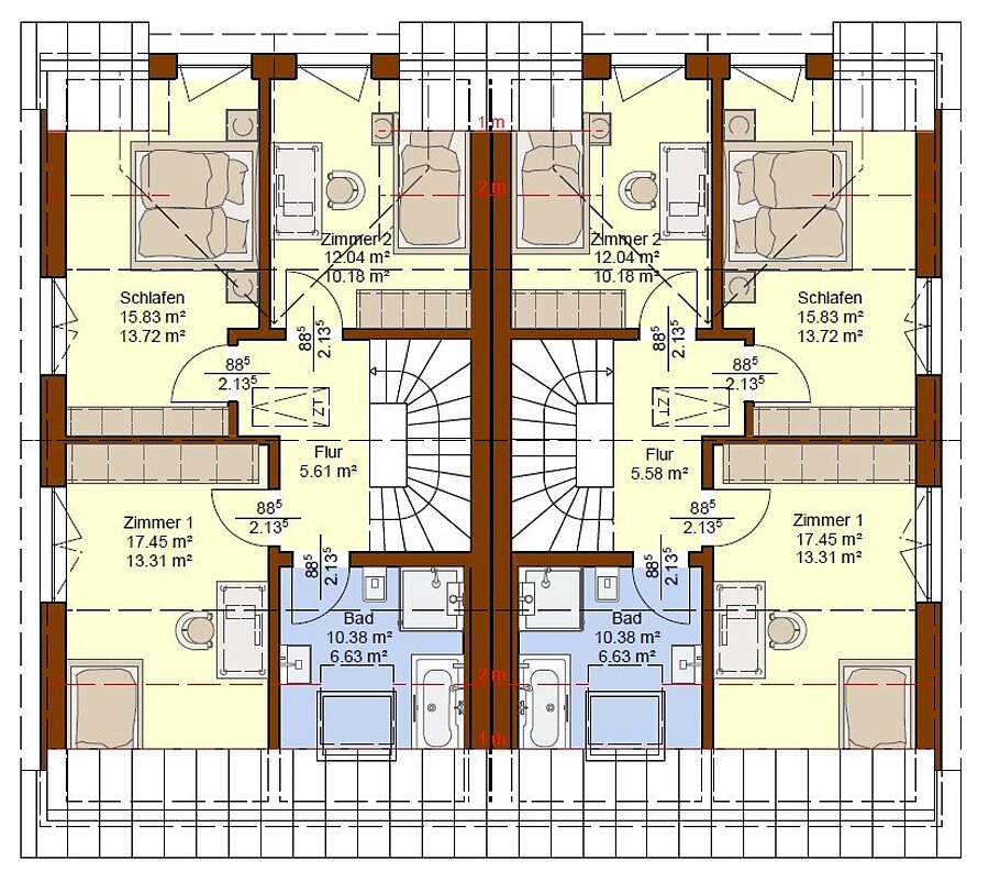
• Wohnfläche: ca. 125 m² (mit Schrägen ca. 140 m²)
• Grundstücksgrößen: ca. 180 – 330 m²
• Kaufpreis gesamt: ab 446.500 € (inkl. Grundstück &
Erschließung)
• Hauspreis: 345.100 € (nach Abzug des WeberHaus-Gutscheins)
• Grundstückspreis: 45.000 – 82.500 € (abhängig von
Grundstücksgröße)
• Erschließungskosten: 60.000 € (Festpreis)
Vorteil:
Die Erschließung erfolgt durch SPAX, nicht über die Kommune.
Dadurch profitieren Sie von einem transparenten Festpreis –
ganz ohne versteckte Kosten!
Unser Versprechen: Sollten die tatsächlichen Kosten geringer
ausfallen, erhalten Sie eine Rückvergütung der Differenz.
Und das Beste: Keine Maklerprovision!



Objektdetails & weitere Kennzahlen
- Haustyp Doppelhaushälfte
- Keller Nein
- Baujahr 2026
- Bauphase Haus in Planung
- Objektzustand Erstbezug
- Gäste WC
Flächen
- Wohnfläche 120 m²
- Nutzfläche 125 m²
- Grundstücksfläche 180 m²
Anzahl Zimmer
- Anzahl Zimmer 5
- Anzahl Schlafzimmer 3
- Anzahl Badezimmer 1
Energie & Heizen
- Heizungsart Wärmepumpe
Parken
- Parkplatz Außenstellplatz
- Parkflächenanzahl 1
Ausstattung
Nachhaltige Ausstattung
•KfW-40+ Standard mit PV-Anlage & 7,1 kWh Stromspeicher
•Energieeffiziente Heiz- & Kühllösung – angenehm warm im
Winter, erfrischend kühl im Sommer
•Hochwertige Holzbauweise mit regionalem Holz (z. B. Fichte)
•3-fach-Wärmeschutzverglasung, elektrische Rollläden,
Granitfensterbänke
•Massivholztreppe, lichtdurchflutete Räume & ideale
Südausrichtung
•Wallbox-Vorbereitung für Ihr E-Auto
Sonstige Angaben
Gestalten Sie mit!
Ob offenes Wohnen im Erdgeschoss, großzügige Schlafbereiche
im Obergeschoss oder ein Homeoffice mit Ruhe und Licht – Sie
entscheiden, wie Ihr Zuhause aussieht.
Gestalten Sie Ihren individuellen Grundriss und schaffen Sie
Wohnraum, der perfekt zu Ihrem Leben passt.
Projektstatus
•Baustart untere Bauhälfte (Grundstücke 13-20, siehe beigefügter
Lageplan): 1.Quartal 2026
•Fertigstellung: August / September 2026
Die Stadt Ennepetal unterstützt das Projekt aktiv und sorgt für
eine schnelle Bearbeitung der Baugenehmigungen.
Jetzt vormerken lassen!
Nutzen Sie die Chance, Teil dieses zukunftsweisenden
Neubauprojekts in Ennepetal zu werden!
Profitieren Sie von Mitgestaltungsspielraum, Preisvorteilen und
einem nachhaltigen Wohnkonzept, das auf Generationen
ausgelegt ist.
Ein Zuhause, das zu Ihnen passt – heute, morgen und für die
Zukunft.
Kontaktdaten SPAX:
Michael Horn
Tel. 02333 799 4517
Mobil: 0160 33 68 280
Kontaktdaten Weberhaus:
Carsten Dahmen
Tel.: 0202 266 410
Mobil: 0170 2351 352








