
Adresse des Objekts
90556 Cadolzburg
160 m²
Einfamilienhaus
815.840 €
Großzügige Doppelhaushälfte in Cadolzburg/Wachendorf inklusive Grundstück
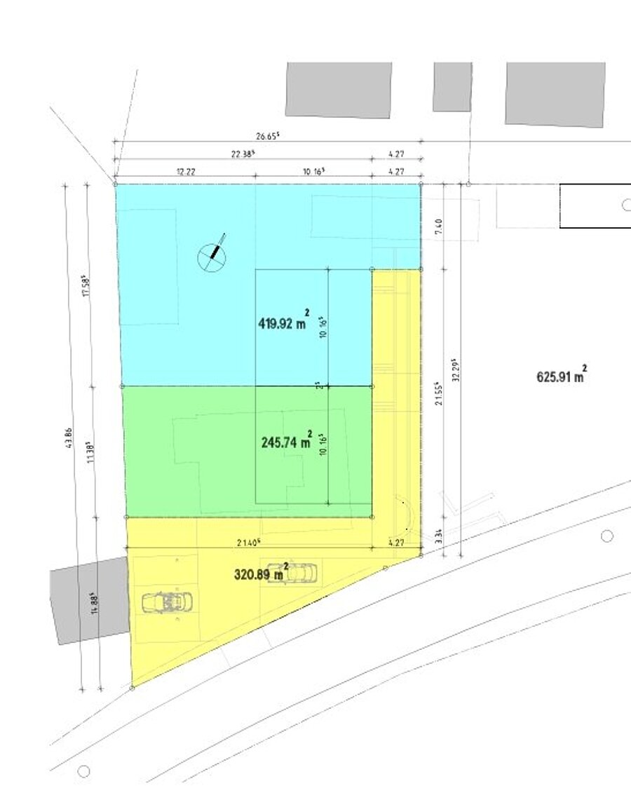
Hereinspaziert in Ihr neues Eigenheim ! Diese moderne Doppelhaushälfte auf einem großzügigen 406 m² großen Grundstück bietet Ihnen die perfekte Kombination aus Ruhe, Komfort und Nähe zur Stadt.
Die Ausrichtung nach Süden/Westen sorgt für optimale Lichtverhältnisse und ein angenehmes Wohnklima.
Mit einer Wohnfläche von ca. 160 m² wird diese projektierte Doppelhaushälfte nach KFW 55 - Standard in hochwertiger Holzständer - Bauweise errichtet. Optional kann dieses Haus auch im KFW 40 Standard errichtet werden, sodass Sie die entsprechenden Fördermittel dafür beantragen können.
Die Eigentümer haben bereits eine Bauvoranfrage bei der Gemeinde eingereicht, sowie diverse Angebote für die Erschließung des Grundstücks eingeholt, um Ihnen baurechtliche, sowie kostenseitige Sicherheit zu geben.
Die Auflistung der Gesamtkosten teilen sich dabei wie folgt auf:
- WeberHaus - Doppelhaushälfte mit ca. 160m² in der Ausbaustufe Bad-komplett + Spachtelung: 355.000 € (400.000 € in der Ausbaustufe schlüsselfertig)
- Kosten für die Bodenplatte: 25.000 € (auf Wunsch, auch mit Keller möglich)
- 406m² Grundstück: 263.900 €
- Abrisskosten Altbestand: 25.000 €
- Kaufnebenkosten i.H.v. 5,5% (Kopplungsgeschäft bezogen auf Grundstück & Hauspreis Bad-komplett): 34.040 €
- Baunebenkosten (Architektenhonorar, Bodengutachten): 10.900 €
- Erschließungskosten (Kanalanschluss, Geländeniveauherstellung, Strom/Wasser/Telekom, Sonstiges) : 57.000 €
- Garten, Terrasse, Pflasterarbeiten: 45.000 €
Klicken Sie auf diesen Link, um sich einen ersten Eindruck von Ihrem neuen Zuhause zu machen:
https://youtu.be/aurvZ4-PK1Q
Bitte beachten Sie unsere weitere Doppelhausanzeige auf diesem Grundstück. In diesem Fall handelt es sich um die Doppelhaushälfte im vorderen Teil des Grundstücks mit etwas weniger Grundstücksanteil.
Für weitere Informationen oder zur Vereinbarung eines Besichtigungstermins des Grundstücks kontaktieren Sie uns gerne. Wir freuen uns auf Ihre Anfrage!








Objektdetails & weitere Kennzahlen
- Haustyp Einfamilienhaus
- Keller Nein
- Baujahr 2026
- Bauphase Haus in Planung
- Objektzustand Erstbezug
- Gäste WC
- Barrierefrei
Flächen
- Wohnfläche 160 m²
- Nutzfläche 160 m²
- Grundstücksfläche 406 m²
Anzahl Zimmer
- Anzahl Zimmer 4
- Anzahl Schlafzimmer 3
- Anzahl Badezimmer 1
- Etagenzahl 2
Energie & Heizen
- Heizungsart Wärmepumpe
- Befeuerungsart Strom
Parken
- Parkplatz Außenstellplatz
- Parkflächenanzahl 2
Ausstattung
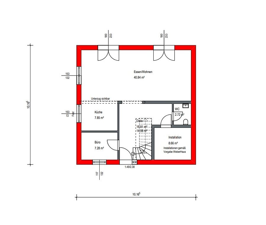
Der quadratische Grundriss des Hauses sorgt für eine klare, effiziente Raumaufteilung. Beim Betreten des Stadthauses liegt links ein vielseitig nutzbarer Raum, ideal als Büro oder Gästezimmer. Die großzügige, L-förmig angelegte Diele bietet ausreichend Platz für eine Garderobe. Der Wohn-, Ess- und Kochbereich ist über einen breiten Durchgang erreichbar und umfasst rund 50 m2. Zwei Doppel-Terrassentüren schaffen eine helle und offene Atmosphäre mit Blick nach draußen. Im Erdgeschoss sind außerdem ein Gäste-WC und ein Installationsraum vorgesehen.
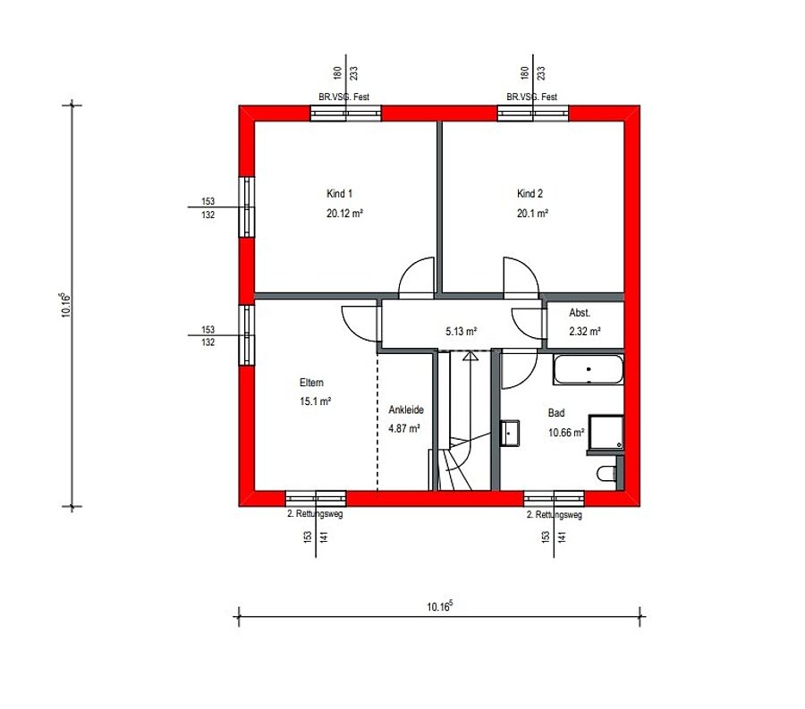
Die zwei Vollgeschosse des CityLife 405 sorgen dafür, dass alle Zimmer im Obergeschoss von der vollen Raumhöhe ohne Dachschrägen profitieren. Das Elternschlafzimmer bietet großzügigen Platz für eine Ankleide oder einen großen Einbauschrank. Das Badezimmer ist mit einer Dusche und einer Badewanne ausgestattet, während das WC dezent hinter einer Schamwand platziert ist. Zwei gleich große Kinderzimmer und ein praktischer Abstellraum ergänzen das Obergeschoss. Charakteristisch für das CityLife sind der quadratische Baukörper mit Zeltdach und die durchdachte zweigeschossige Bauweise.
Sonstige Angaben
Kontaktieren Sie uns, wir planen und gestalten sehr gerne mit Ihnen Ihr individuelles Traumhaus. Unser gesamtes Team im Bauforum Nürnberg steht Ihnen sehr gerne für all Ihre Fragen und Wünsche zu Verfügung. Alles aus einer Hand, für Ihr Rundum-Sorglos-Paket: Sichern Sie sich heute noch Topkonditionen beim WeberHaus Finanzierungsservice.
Lage
Wachendorf liegt etwa zwei Kilometer östlich von Cadolzburg, vier Kilometer westlich von Fürth und etwa fünf Kilometer nordwestlich von Zirndorf entfernt. Der Ort liegt idyllisch am Südhang des Klingenbucks (379 m ü. NHN) und Scheltenberges (369 m ü. NHN) westlich des Zirndorfer Forsts.
Im Ort gibt es mehrere Restaurants und ein Bäcker in Laufweite. Supermärkte befinden sich im wenige Minuten entfernten Cadolzburg.
Des weiteren gibt es eine Grundschule im benachbarten Egersdorf, sowie weiterführende Schulen in Cadolzburg, Fürth oder Nürnberg.
Durch die nur 10 min zu Fuß entfernte Regionalbahnstation in Egersdorf ist Fürth per Bahn in 20min zu erreichen.


