
Adresse des Objekts
Ruländerallee 10, 79112 Freiburg
160 m²
Keine Angabe
1.050.000 €
Hochwertige Neubau-Einfamilienhäuser in ruhiger Lage nahe Freiburg
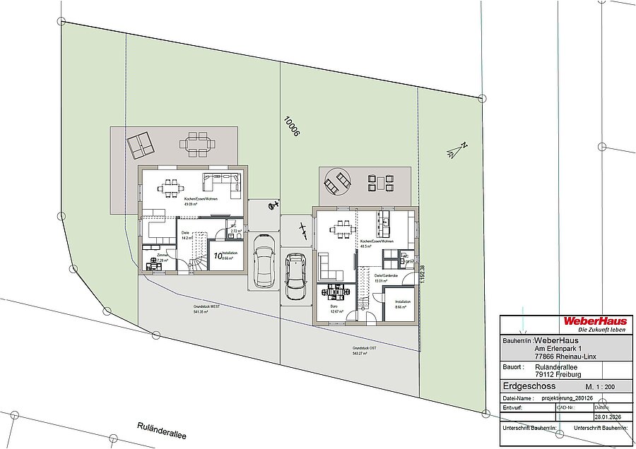
In ruhiger Ortsrandlage von Freiburg-Opfingen, im begehrten Ruländerweg, entstehen zwei moderne Einfamilienhäuser auf großzügigen Grundstücken von jeweils ca. 540 m². Umgeben von viel Grün, mit wenig Verkehr und einer angenehm gewachsenen Nachbarschaft, bietet dieses Projekt die seltene Kombination aus naturnahem Wohnen und urbaner Nähe. Opfingen zählt zu den beliebtesten Freiburger Stadtteilen: ländlich geprägt, mit hohem Freizeitwert, gleichzeitig hervorragend angebunden an die Freiburger Innenstadt, den Kaiserstuhl sowie die Autobahn A5. Einkaufsmöglichkeiten, Schulen, Kindergärten, Vereine und Weingüter befinden sich direkt im Ort, während die Freiburger Innenstadt in wenigen Minuten erreichbar ist.
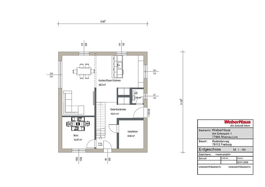
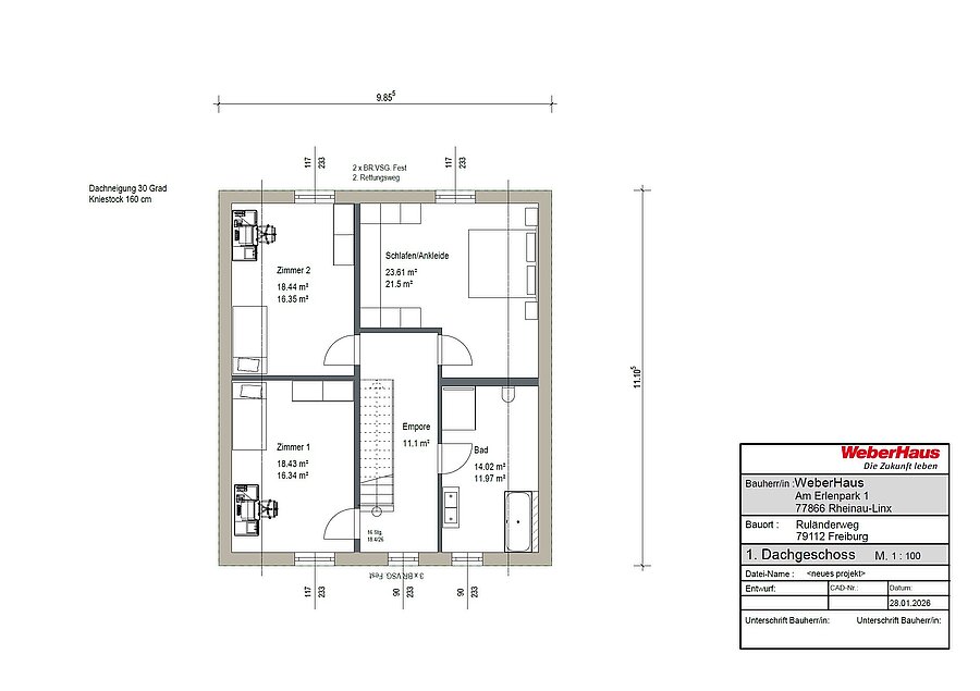
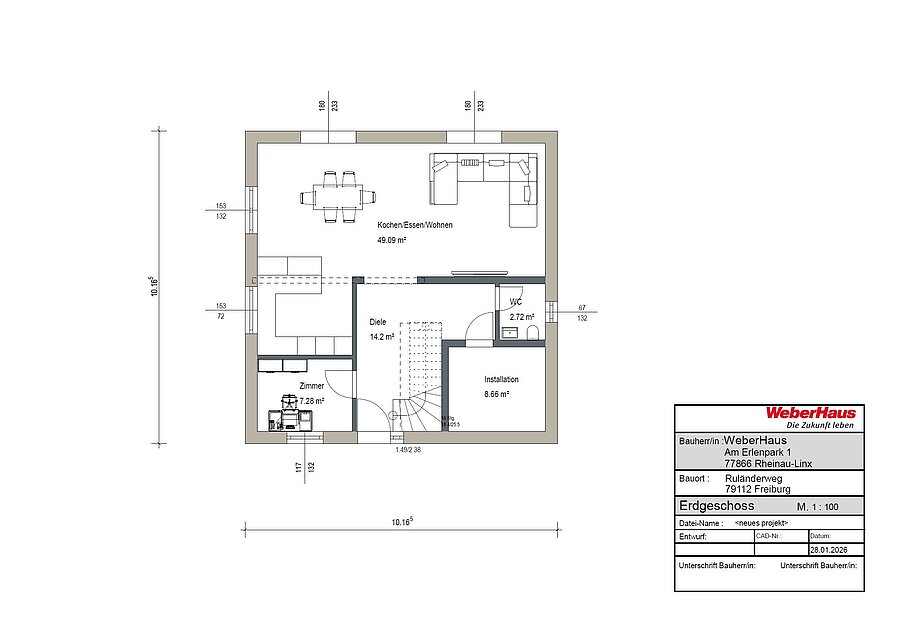
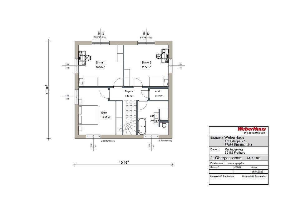
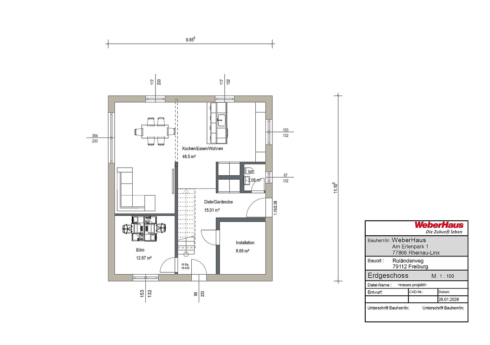
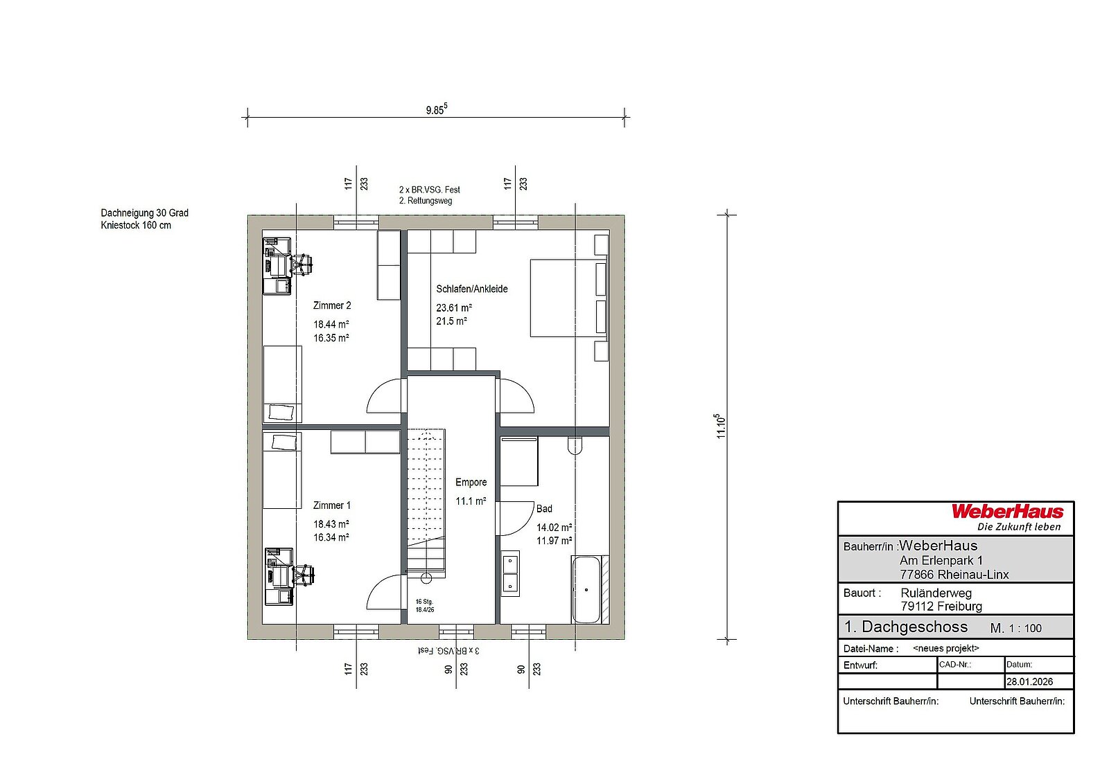
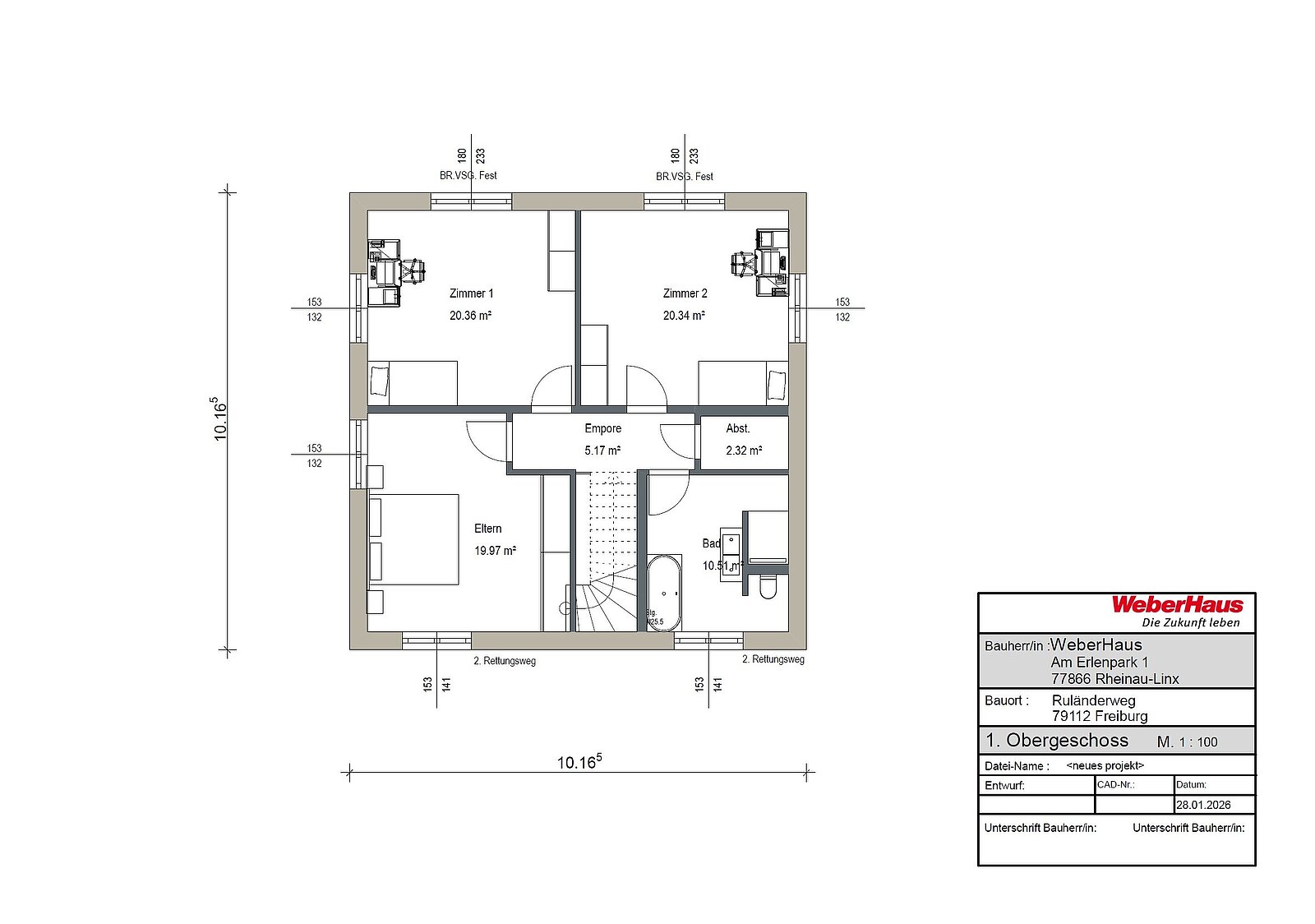
Die beiden projektierten Einfamilienhäuser bieten jeweils ca. 165 m² Wohnfläche in moderner, zweigeschossiger Bauweise. Die Grundrisse sind frei planbar und können individuell an die Bedürfnisse der künftigen Eigentümer angepasst werden – ideal für Familien, Paare oder anspruchsvolle Eigennutzer. Großzügige Wohn- und Essbereiche, helle Räume und eine klare Architektur schaffen ein zeitgemäßes Wohngefühl mit hoher Aufenthaltsqualität.
Realisiert werden die Häuser in gehobener Qualität mit WeberHaus als Baupartner. Der Ausstattungsstandard umfasst unter anderem den Effizienzhaus-40-Standard, eine moderne Wärmepumpe, Photovoltaik- und Solartechnik, Fußbodenheizung, hochwertige Parkettböden, bodengleiche Fliesenduschen sowie moderne, energieeffiziente Haustechnik. Nachhaltigkeit, Wohnkomfort und langfristige Wertstabilität stehen dabei im Mittelpunkt.
Besonderes Highlight ist der jeweils großzügige Garten mit Westausrichtung, der viel Sonne am Nachmittag und Abend bietet und frei gestaltbar ist – perfekt für Familienleben, Freizeit, Garten oder entspannte Stunden im Freien. Die ruhige Lage ohne Durchgangsverkehr sorgt zusätzlich für Privatsphäre und Erholung.
Dieses Angebot richtet sich an Käufer, die ein hochwertiges Neubau-Einfamilienhaus in einer der attraktivsten Wohnlagen Freiburgs suchen – ruhig, grün und dennoch stadtnah. Der Kaufpreis für die Einfamilienhäuser beginnt ab 1.050.000 €.
Objektdetails & weitere Kennzahlen
- Haustyp Keine Angabe
- Keller Nein
- Baujahr 2027
- Bauphase Haus in Planung
- Objektzustand Erstbezug
- Gäste WC
Flächen
- Wohnfläche 160 m²
- Nutzfläche 170 m²
- Grundstücksfläche 542 m²
Anzahl Zimmer
- Anzahl Zimmer 6
- Anzahl Schlafzimmer 3
- Anzahl Badezimmer 1
- Etagenzahl 2
Energie & Heizen
- Heizungsart Wärmepumpe




