
Adresse des Objekts
78359 Orsingen
255 m²
58/2
89.250 €
Renditeobjekt mit möglicher Eigennutzung am Bodensee
Das Grundstück mit 255qm liegt in einer Seitenstraße im Ortsteil Orsingen, 10 Autominuten vom Bodensee entfernt. Es bietet sich darauf sowohl eine Bebauung auf Bodenplatte sowie mit Keller an. Dank der baurechtlichen Regelung § 34 BauGB ist die Außengestaltung des Hauses freier geregelt und kann ganz nach Ihren Wünschen gestaltet werden.
Damit sind ein Haus zur Eigennutzung, ein Renditeobjekt mit bis zu zwei Wohneinheiten, ein Ferienhaus bzw. Ferienwohnungen, ein Bürogebäude oder auch ein kreatives Studio darauf bau bar.
Orsingen-Nenzingen liegt mit ca. 3.500 Einwohnern in der sonnigen Bodensee-Region zwischen Singen und Stockach. Mit Sehenswürdigkeiten wie die Burgruine Hegau, der Steißlinger See und die Marienschlucht sowie ausgebauten Rad- und Wanderwegen ist die Gegend nicht nur Urlaubsgebiet, sondern auch ein Ort zum Niederlassen.





Objektdetails & weitere Kennzahlen
- Flurstück 58/2
- Erschliessungszustand Teilerschlossen
- Empfohlene Nutzungsarten Einfamilienhaus, Mehrfamilienhaus
- Bebaubar nach Nachbarbebauung
- Baugenehmigung
Sonstige Angaben
Das Grundstück kann nur zur Bebauung mit einem WeberHaus erworben werden. In der Kombination von Haus und Grundstück können attraktive Steuerverrechnungen beansprucht werden.
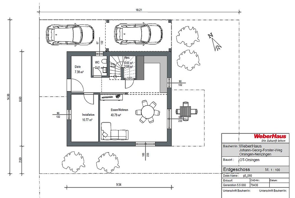
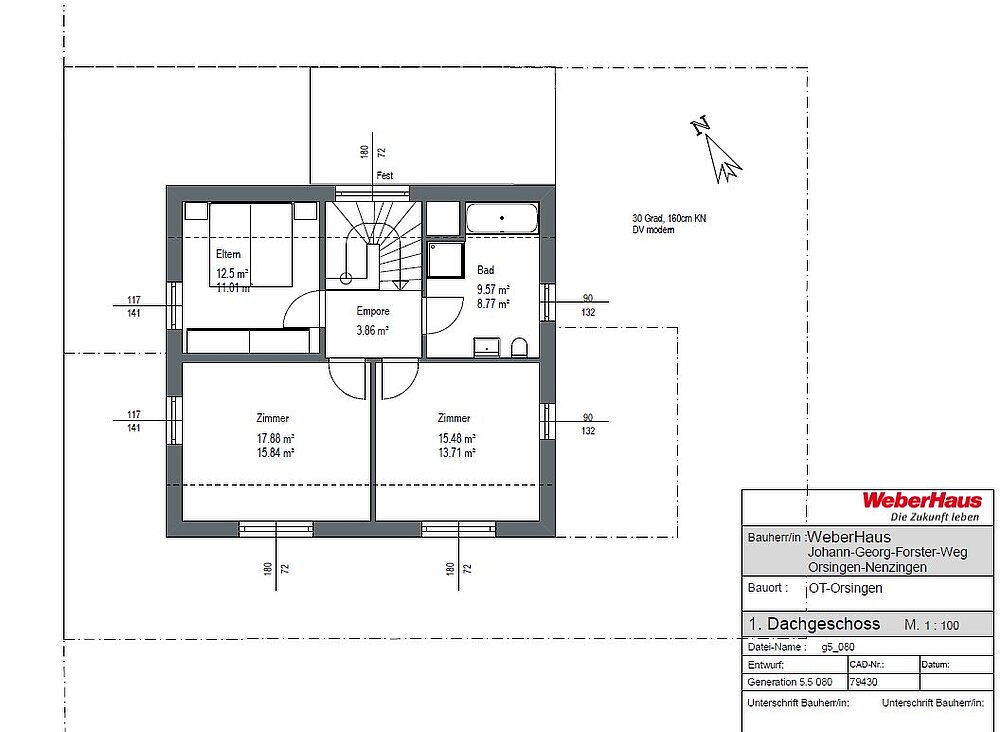
Unser WeberHaus Finanzierungsservice erstellt für Sie ein maßgeschneidertes Baufinanzierungskonzept. Der gezeigte Grundriss eignet sich ideal für eine kleine Familie. Es bietet Platz auf ca. 120 m² und kann optional auch unterkellert werden.
Die Versorgungsleitungen liegen im öffentlichen Bereich vor dem Grundstück an.
Die Kosten für den Hausanschluss der Ver- und Entsorgungsleitungen sind Bauherrenleistung.
Lage
Ob ein Kindergarten in Laufweite oder die Grundschule in der anderen Hälfte der Doppelgemeinde, in Orsingen-Nenzingen finden Sie alles, um sich ein Leben als Familie aufzubauen oder gemeinsam alt zu werden. Ein Jugendcampingplatz, ein Golfclub und ein beheiztes Freibad runden die zahlreichen Freizeitangebote für Jung und Alt ab.
Dank der Lage in Ortsmitte gibt es in direkter Fußnähe des Grundstückes Busverbindungen mit idealen Umsteigemöglichkeiten bis nach Singen, Konstanz oder in die Schweiz.
Direkt angebunden an die A98 und A81 bietet Orsingen-Nenzingen die perfekte Gelegenheit für Pendler oder für eine Ferienwohnung als Renditeobjekt.