
Adresse des Objekts
57299 Burbach
70 m²
Bungalow
352.630 €
Schlüsselfertiger Bungalow mit Anbau "Barrierefrei" in 57299 Burbach
"Eben Leben" im Siegerland im Bungalow mit Anbau auf Bodenplatte in Schlüsselfertiger Bauweise.


Objektdetails & weitere Kennzahlen
- Haustyp Bungalow
- Keller Nein
- Baujahr 2027
- Bauphase Haus in Planung
- Objektzustand Erstbezug
- Bezugsfrei ab 06/27
- Barrierefrei
Flächen
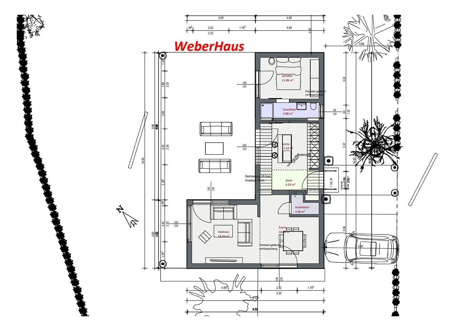
- Wohnfläche 70 m²
- Nutzfläche 70 m²
- Grundstücksfläche 516 m²
Anzahl Zimmer
- Anzahl Zimmer 3
- Anzahl Schlafzimmer 1
- Anzahl Badezimmer 1
- Etagenzahl 1
Energie & Heizen
- Heizungsart Wärmepumpe
- Befeuerungsart Strom
Parken
- Parkplatz Außenstellplatz
- Parkflächenanzahl 2
Ausstattung
Auf einer Grundstücksfläche von 516 qm entsteht dieser barrierefreie Bungalow mit Anbau auf Bodenplatte in schlüsselfertiger Ausstattung.
Erleben Sie Wohnen anders . . . ein überschaubares Zuhause, das mit Leichtigkeit begeistert. Auf ca. 70 qm Wohnfläche verwirklichen wir Ihren Traum in puristischer Architektur, mit klaren Linien und einer Ästhetik, die Wohnträume neu definiert.
Ein firsthoch offener Bereich über der Diele schafft Großzügigkeit und Weite. Bodentiefe Fenster lassen die Natur in Ihr neues Zuhause. Elektrische Rollläden, 9-fach verriegelte Haustüre bieten Schutz und verwöhnen Sie neben der hohen Energetik mit einer wohligen Behaglichkeit. Auf 70 qm erleben Sie einen Wohntraum, der alles zum angenehmen Leben darstellt. Auf Wunsch können Eigenleistungen eingebracht werden und/oder weitere Akzente in der Gestaltung gesetzt werden.
Sonstige Angaben
Option 2 - Bungalow mit Anbau auf Bodenplatte Schlüsselfertig ab 288.000,--€ zzgl. anbieterunabhängige Baunebenkosten.
Grundstücksanteil 516 qm 64.630,--€ zzgl. 3.57 % Maklercourtage an TH-Immowerk Burbach, zzgl. Kaufnebenkosten (Grunderwerbsteuer, Notar- und Gerichstkosten)
Lage
57299 Burbach eine Gemeinde im südlichen Siegerland. Die reizvolle naturnahe Lage bietet Naturliebhabern jeden Tag den Blick in grüne Wälder und malerische Täler.
