Balance 355
Alles auf einen Blick
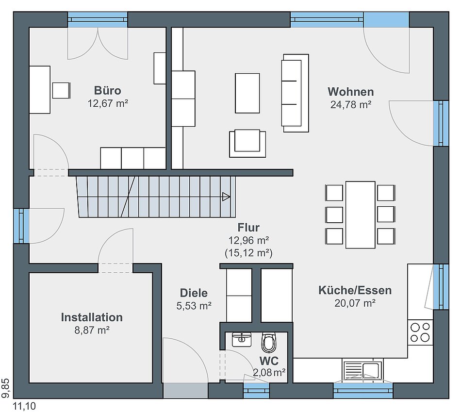
Außenmaße
9,85 x 11,10 m
Wohnfläche
159,67 m2
Architektur
1,5-geschossige Häuser
Baureihe
Balance — 355
Dachform
Satteldach
Merkliste
Mehr Informationen?

Zeitlos wohnen zum Aktionspreis

Das Aktionshaus Balance überzeugt als klassisches Einfamilienhaus mit Satteldach und einem Kniestock von 140 cm. Auf rund 160 m² Wohnfläche entsteht ein harmonisches Wohnkonzept mit viel Platz für Familie, Arbeiten und Freizeit. Die ausgewogene Architektur verbindet traditionelle Elemente mit moderner Raumplanung. Helle Räume und klare Strukturen sorgen für ein angenehmes Wohngefühl. Durch den attraktiven Aktionspreis wird dieses Haus zur idealen Lösung für Bauherren, die Wert auf Raum, Qualität und Planungssicherheit legen.

Mehr zur Aktion erfahren

Preis-Beispiel

Preis-Basis ist die Ausbaustufe "Bad komplett" inklusive top Ausstattungs-Highlights
Erd- und Dachgeschoss ausgebaut inkl. Bodenplatte
Preise verstehen sich ohne Anbauten. Abbildungen können aufpreispflichtige Extras enthalten. Basis der genannten Preise ist die derzeit gültige Bau- und Ausstattungsbeschreibung.
Preisstand: 01.02.2026
349.000,- €

Moments 2026 - Unsere Aktionspakete

Manchmal spürt man, dass ein neuer Lebensabschnitt beginnt.

Damit genau dieser Schritt leichter wird, gibt es WeberHaus Moments. 
Für alle, die nicht warten wollen, bis sich das Leben verändert - sondern den Moment jetzt selbst gestalten.

Manche Entscheidungen geben Sicherheit. Andere schenken Freiheit. Und manche verbinden beides.
Unsere drei Aktionspakete zu einem besonderen Preis verbinden beides. Mit Technik, die entlastet, und Lösungen, die heute schon an morgen denken. 
Sie haben die Wahl: Zu einem Aktionshaus wählen Sie ein Aktionspaket. Bei einem Haus aus unseren Baureihen oder einer individuellen Planung können es zwei sein. 
Das Hauskonzept OPTION ist von den Aktionspaketen ausgenommen.

Mehr zur Aktion erfahren

Photovoltaikanlage mit Batteriespeicher

  • 16 Doppelglas-Solarmodule (je 470 Wp), Gesamtleistung: 7,52 kWp
  • SENEC-Home P4 Batteriespeicher mit 7,1 kWh
  • Lithium-Eisenphosphat-Technologie
  • Flexibel erweiterbar (bis max. 17,75 kWh)
  • Steuerung per App

Jetzt nur 15.500,00 €

THZ Luft-Wasser-Wärmepumpe inkl. Fußbodenheizung

  • Multifunktional: Heizen, Kühlen (optional), Lüften, Warmwasser
  • Klimafreundliches Kältemittel R290 (Propan)
  • Steuerung via App
  • Inklusive Gutschein für 2 Wartungen

Jetzt nur 12.500,00 €

Smart Home Haussteuerung Symbox

  • Zentrale Smart‑Home‑Steuerung mit WeberLogic 2.0 – SymBox als Herzstück
  • Intuitive Kacheloberfläche – pro Raum individuell anpassbar
  • Szenen & Zentralfunktionen inkl. Zeitplänen
  • Optionale Erweiterungen: Wetterstation, Sprachassistenten, uvm.

Jetzt nur 5.500,00 €*

* = Preisbeispiel für CityLife 205.

Grundrisse

WeberHaus Logo Lade-Animation